Beschrijving
Aan de rand van het dorp gelegen vrijstaande woning met aanbouw, overkapping en een zeer ruime vrijstaande stenen schuur (ca. 5,50 x 16,00 meter). De woning is oorspronkelijk gebouwd in 1955, en door de huidige eigenaar in het afgelopen jaar op meerdere punten al gemoderniseerd, waaronder de woonkamer, keuken en de slaapkamers op de verdieping. Er zijn echter nog wel verbeteringen mogelijk (badkamer, toilet en isolatie), waardoor de nieuwe eigenaar de woning verder naar eigen smaak kan afwerken en er zijn eigen “touch” aan kan geven.
De woning is ook nog eens op een heerlijk ruim perceel van 614 m2 eigen grond gelegen.
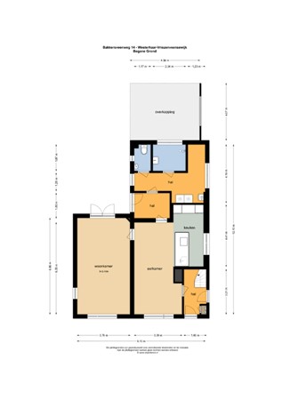
Dit woonhuis kent de volgende indeling:
Begane grond: entrée met meterkast en trapopgang naar de 1e verdieping; woonkeuken met moderne inbouwkeuken; lichte doorzonwoonkamer voorzien van PVC-vloer en openslaande deuren naar het terras; hal voorzien van achteringang, hal met moderne toiletruimte; eenvoudige badkamer; overkapping.
1e verdieping: overloop voorzien van vlizo trap naar de 2e verdieping; 5 slaapkamers.
2e verdieping: bergzolder.
De gesloten keuken is voorzien van een moderne inbouwkeuken (2025) met daarin een Bora inductiekookplaat met afzuiging, koelkast, vaatwasser, oven en quooker. De keuken biedt genoeg ruimte voor bijvoorbeeld een grote eettafel.
De gedateerde en eenvoudige badkamer is voorzien van douche en wastafel.
Algemeen:
-dit huis is oorspronkelijk gebouwd in 1955
-de warmwater- en verwarmingsvoorziening geschiedt middels een gasgestookte c.v.-installatie met Nefit HR combi-ketel, geïnstalleerd in 2018
-op de begane grond (woonkamer en woonkeuken) is vloerverwarming aanwezig
-de gevels in de woonkamer en woonkeuken zijn van binnenuit na-geïsoleerd
-deels voorzien van HR isolatieglas
-beschikt over energielabel G
-in 2025 is de meterkast vernieuwd
-bij koop wordt een waarborgsom/bankgarantie van 10% van de koopsom van de koper verlangd
Resumerend: een aan de buitenrand van het dorp gelegen deels gemoderniseerde vrijstaande woning, voorzien van een multifunctionele stenen schuur (ideaal voor hobbyisten).