Beschrijving
Aan de buitenrand van het dorp gelegen volledig gerenoveerd, gemoderniseerde
en verduurzaamde eindwoning met stenen berging en diepe achtertuin op een
perceel van ca. 200 m2 eigen grond. De woning is in 2022 door de huidige
eigenaar, Mijande Wonen, grondig gerenoveerd en verduurzaamd. Hierbij zijn
onder meer de gevels vernieuwd en geïsoleerd (kunststof bekleding), het dak
volledig vernieuwd inclusief isolatie en dakpannen, HR++ beglazing geplaatst en
zijn er 10 zonnepanelen aangebracht. Dankzij deze ingrepen beschikt de woning
over een energielabel A+. Kortom: een instapklare en goed onderhouden
starterwoning op een prettige locatie met voldoende parkeergelegenheid direct
voor de deur.
Dit lichte woonhuis kent de volgende indeling:
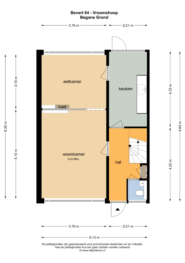
Begane grond: entrée/hal voorzien van nieuwe meterkast, moderne toiletruimte en trapopgang naar de 1e verdieping; gesloten keuken voorzien van inbouwkeuken; lichte doorzonwoonkamer voorzien van scheidingswand tussen zithoek en eethoek.
1e verdieping: overloop voorzien van trapopgang naar de 2e verdieping; 3 lichte slaapkamers waarvan 2 voorzien van vast kasten; moderne en lichte badkamer.
2e verdieping: grote bergruimte met mogelijkheid voor een extra slaapkamer.
De gesloten keuken is voorzien van een eenvoudig, maar moderne inbouwkeuken (2022).
De moderne en lichte badkamer (2022) is voorzien van een douche, hangtoilet, wastafel en radiator.
Algemeen:
-dit woonhuis is gebouwd in 1972
-de warmwater- en verwarmingsvoorziening geschiedt middels een gasgestookte
c.v.- installatie met Nefit HR combi-ketel geïnstalleerd in 2009
-in 2022 zijn er 10 zonnepanelen geïnstalleerd, is het dak volledig vernieuwd inclusief
geïsoleerde dakplaat en dakpannen, nieuwe meterkast, nieuwe badkamer en
toiletruimte, nieuwe inbouwkeuken, nieuwe mechanische ventilatie, nieuwe kunststof
kozijnen incl. HR++ beglazing etc, waardoor energielabel A+
-gelegen op korte fietsafstand van basisschool en overige voorzieningen
-er geld voor deze woning een “eigen bewoningsverplichting” voor een periode van 2
jaar, kortom: je dient het huis zelf te gaan bewonen
-het perceel dient nog wel te worden ingemeten door het Kadaster. Deze kosten
komen voor rekening van de verkoper
-bij koop wordt een waarborgsom/bankgarantie van 10% van de koopsom van de
koper verlangd
Resumerend: en instapklare en goed onderhouden starterwoning op een prettige locatie met voldoende parkeergelegenheid direct voor de deur.
Geïnteresseerd: op donderdag 6 november 2025 van 9.00 tot 17.00 uur is er een kijkdag georganiseerd. U kunt alleen deelnemen op afspraak. Hiervoor kunt u tel. contact opnemen met ons kantoor op tel. nr 0546 641234.