Beschrijving
Keurig onderhouden tussenwoning met een ruime en diepe achtertuin, een praktische stenen berging en gezellige overkapping waar je het hele jaar door kunt genieten op een ruim perceel van maar liefst 200 m2 eigen grond. Deze ideale starterswoning is gebouwd in 1957, door de jaren heen zorgvuldig gemoderniseerd en in 2024 op de gehele begane grond voorzien van een nieuwe en geïsoleerde betonvloer met comfortabele vloerverwarming. Dankzij de vloer-, muur- en zoldervloerisolatie en het grotendeels isolerende glas beschikt de woning over energielabel D.
Binnen ca. 35 autominuten zijn steden als Enschede, Hengelo, Almelo en Zwolle bereikbaar.
Deze leuke starterswoning kent de volgende indeling:
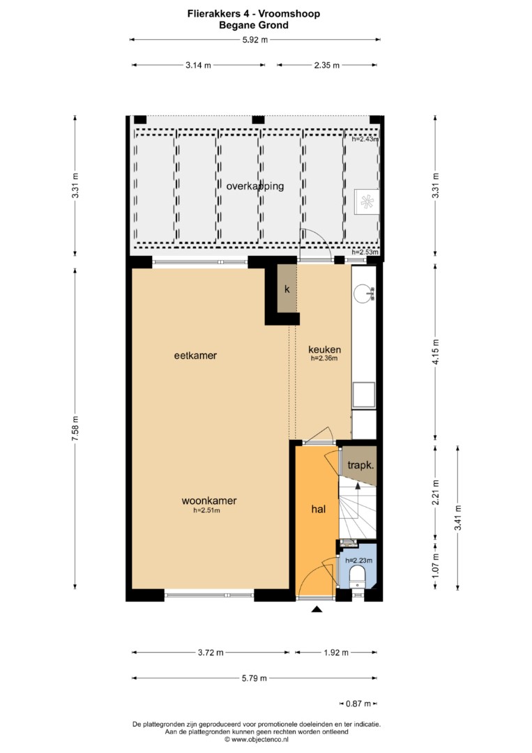
Begane grond: entrée/hal met meterkast, trapkast, trapopgang naar de 1e verdieping en toiletruimte; lichte en ruime doorzon woonkamer voorzien van
PVC-vloer; open keuken met moderne inbouwkeuken en achteringang.
1e verdieping: overloop voorzien van vlizotrap naar de 2e verdieping; 3 moderne slaapkamers, waarvan 1 met deur naar balkon; keurige badkamer.
2e verdieping: bergzolder.
De open keuken is voorzien van een moderne inbouwkeuken (ca. 2015) met daarin een inductiekookplaat, RVS afzuigkap, koelkast, vaatwasser en combi-magnetron.
De lichte badkamer is voorzien van een inloopdouche, wastafel en radiator
Algemeen:
-dit huis is gebouwd in 1957
-het huis is in 2024 door de huidige eigenaar gemoderniseerd en op de begane grond voorzien van een nieuwe geïsoleerde betonvloer met comfortabele vloerverwarming, tevens is zowel op de begane grond als 1e verdieping het stucwerk vernieuwd
-de warmwater- en verwarmingsvoorziening geschiedt middels een gasgestookte c.v.-installatie met Remeha combi-ketel, geïnstalleerd in 2022
-de woning is voorzien van spouw-, vloer- en glasisolatie en beschikt over
energielabel D
-in 2022 is het buitenschilderwerk uitgevoerd
-gelegen op enkele minuten lopen van alle belangrijke voorzieningen die het dorp te bieden heeft (NS station, winkels, activiteitencentrum, sportaccommodaties)
-bij koop wordt een waarborgsom/bankgarantie van 10% van de koopsom van de koper verlangd
Resumerend: een keurig onderhouden, betaalbare starterswoning!