Beschrijving

Keurig onderhouden twee-onder-een-kapwoning, voorzien van aangebouwde garage met carport, sfeervolle overkapping en een diepe, fraaie aangelegde siertuin, op een perceel van 261 m2 eigen grond.. Dit huis is gebouwd in 1988 en ligt op een rustige en groene locatie, tegenover een plantsoen. Deze aantrekkelijke starters- of gezinswoning is volledig geïsoleerd en beschikt over energielabel C. De ligging is ideaal: op loopafstand van drie basisscholen en op slechts drie minuten fietsen van het dorpscentrum met het NS-station, activiteiten- centrum en diverse winkels. In 2021 is de woning nog voorzien van een moderne, volledig nieuwe inbouwkeuken.
Gelegen op ca. 35 autominuten van steden als Enschede, Hengelo, Almelo en Zwolle.

Dit keurige huis kent de volgende indeling:
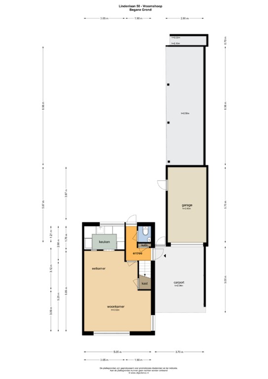
Begane grond: entrée/hal voorzien van meterkast, trapopgang naar de 1e verdieping, achteringang en toiletruimte; lichte en ruime woonkamer voorzien van provisiekast, eikenhouten parketvloer; half-open keuken met moderne u-vormige inbouwkeuken; via buitenom te bereiken garage met carport.   

1e verdieping: overloop met trapopgang naar de 2e verdieping; 3 keurige slaapkamers; lichte badkamer.

2e verdieping: bergruimte met mogelijkheid voor een 4e slaapkamer.

Half open keuken u-vormige en moderne inbouwkeuken (2021) is voorzien van een inductiekookplaat, afzuigkap, koelkast, vaatwasser en magnetron.

De lichte badkamer is voorzien van een inloopdouche met glasdeur, wastafel, toilet en radiator.

Algemeen:
-dit huis is gebouwd in 1988
-de warmwater- en verwarmingsvoorziening geschiedt middels een gasgestookte c.v.-installatie met Vaillant combi-ketel, geïnstalleerd in 2022
-de woning is voorzien van dak-, spouw-, vloer- en grotendeels (begane grond HR+ en 1e verdieping HR ++) glasisolatie en beschikt over energielabel C
-diverse ramen zijn voorzien van kunststof rolluiken
-aan de achtergevel bevindt zich een uitvalscherm
-gelegen op slechts 5 fietsminuten van alle belangrijke voorzieningen die het dorp te bieden heeft (NS station, winkels, activiteitencentrum, sport accommodaties)
-bij koop wordt een waarborgsom/bankgarantie van 10% van de koopsom van de koper verlangd

Resumerend: een instapklare woning waar u zó kunt intrekken en direct kunt genieten van comfortabel wonen!

Geïnteresseerd: op dinsdag 11 november 2025 van 9.30 tot 17.00 uur is er een kijkdag georganiseerd. U kunt alleen deelnemen op afspraak. Hiervoor kunt u tel. contact opnemen met ons kantoor op tel. nr 0546 641234.

Kenmerken