Beschrijving

Een karakteristieke jaren ’30 twee-onder-een-kapwoning met royale aanbouw, overkapping en een grote vrijstaande stenen garage op een royaal en zonnig 
perceel van liefst 255 m2 eigen grond. Dit huis is gebouwd in 1922, en vanaf 
2020 door de huidige eigenaren al behoorlijk gemoderniseerd en verduurzaamd. 
Zo is deze ideale starterswoning voorzien van dak-, vloer-, muur- en glasisolatie 
(allen na-isolatie) én van 12 zonnepanelen, wat heeft geresulteerd in energielabel C.
Een slimme, gezamenlijk met de buren ontworpen schutting maakt het mogelijk om 
met een personenauto via de gezamenlijke oprit de garage achterin de tuin te 
bereiken. Binnen ca. 35 autominuten zijn steden als Enschede, Hengelo, Almelo 
en Zwolle bereikbaar.

Dit karakteristieke huis kent de volgende indeling:
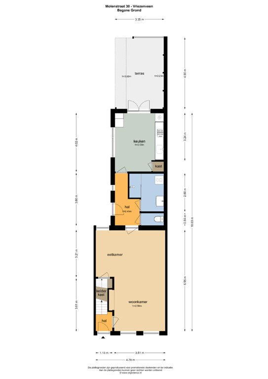
Begane grond: entrée met vaste kast en trapopgang naar de 1e verdieping; lichte en ruime woonkamer voorzien van laminaatvloer en toegang tot kelderkast met vernieuwde meterkast; hal voorzien van achteringang, binnendoor naar keuken en moderne toiletruimte; moderne badkamer; gesloten eetkeuken voorzien van c.v. ruimte en gedateerde inbouwkeuken en openslaande deuren naar het overdekte terras.  

1e verdieping: overloop voorzien van vlizo trap naar de 2e verdieping; 3 slaapkamers, waarvan 2 met vaste kast.

2e verdieping: bergzolder.

De gesloten woonkeuken is voorzien van een gedateerde inbouwkeuken met daarin een gaskookplaat, afzuigkap, koel-vrieskast, vaatwasser, oven en magnetron. De keuken biedt genoeg ruimte voor bijvoorbeeld een grote eettafel.

De moderne badkamer (2024) is voorzien van inloopdouche, wastafelmeubel, designradiator, wasmachine- en drogeraansluiting.

Algemeen:
-dit huis is gebouwd in 1922
-de warmwater- en verwarmingsvoorziening geschiedt middels een gasgestookte 
 c.v.-installatie met Vaillant HR combi-ketel, geïnstalleerd in 2020 
-in 2020 zijn het dak, de muren en vloeren na-geïsoleerd 
-de 1e verdieping is voorzien van kunststofkozijnen met HR++  beglazing 
-in 2020 zijn er 12 zonnepanelen geïnstalleerd
-beschikt over energielabel C
-woonwijk Westerdok krijgt momenteel een volledige revitalisatie, waarbij onder 
 meer de riolering en bestrating vernieuwd worden – een mooie plus voor de 
 toekomstige bewoners-
-gelegen op slechts 10 fietsminuten van alle belangrijke voorzieningen die het
 dorp te bieden heeft (NS station, winkels, activiteitencentrum, sport accommodaties)
-bij koop wordt een waarborgsom/bankgarantie van 10% van de koopsom van de 
 koper verlangd

Resumerend: een keurig onderhouden karakteristieke tweekapper voorzien van praktische garage en heerlijk diepe en zonnige achtertuin. 

Geïnteresseerd: op woensdag 5 november 2025 van 9.00 tot 17.00 uur is er een kijkdag georganiseerd. U kunt alleen deelnemen op afspraak. Hiervoor kunt u tel. contact opnemen met ons kantoor op tel. nr 0546 641234.

Kenmerken