Beschrijving

Modern vormgegeven en keurig onderhouden twee-onder-een-kapwoning. De woning beschikt over een stijlvolle uitgebouwde keuken, aangebouwde berging met carport én een heerlijk zonnige achtertuin op een perceel van 204 m2 eigen grond. Dit alles op een rustige, groene en zeer geliefde locatie in woonwijk Elzenhoek. Binnen geniet u van een lichte, tuingerichte woonkamer en een royale, straatgerichte eetkeuken die in 2021 is uitgebouwd en uitgerust met een luxe, moderne inbouwkeuken. Ook is in 2021 op de begane grond comfortabele vloerverwarming aangebracht. Dankzij dak-, muur-, glas- en vloerisolatie beschikt de woning over energielabel C. De omgeving is ideaal voor gezinnen: rustig, groen, zonder doorgaand verkeer en met een royaal plantsoen inclusief diverse speelvoorzieningen voor kinderen. 

Dit royale huis kent de volgende indeling:
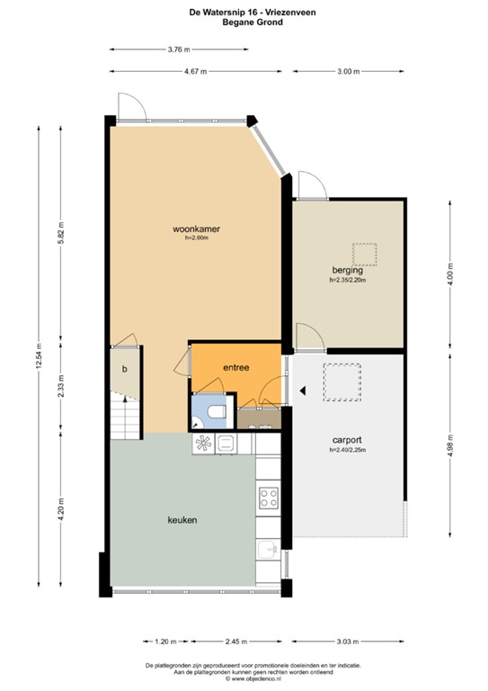
Begane grond: entrée/hal met meterkast en moderne toiletruimte; open eetkeuken voorzien van moderne hoekopgestelde inbouwkeuken en open trapopgang naar de 
1e verdieping; tuingerichte woonkamer van waaruit een prachtig zicht over de zonnige achtertuin; via buitenom te bereiken berging met carport. 

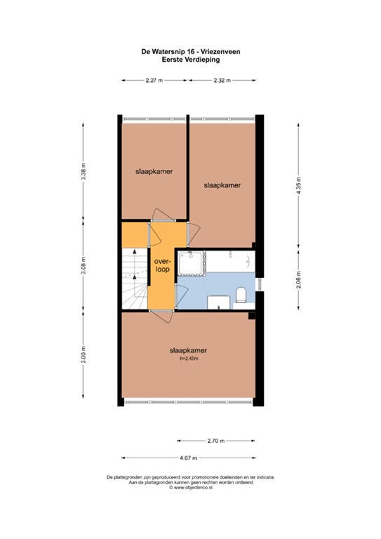
1e verdieping: overloop met vaste trap naar de 2e verdieping; 3 moderne slaapkamers; lichte en complete badkamer.

2e verdieping: overloop met toegang naar het dakterras; 4e slaapkamer; bergruimte.

De open eetkeuken is voorzien van een modern en hoekopgestelde inbouwkeuken (2021) met daarin een inductiekookplaat voorzien van geïntegreerde afzuiging (BORA), koelkast, vrieskast, vaatwasser en combi- magnetron.

De lichte en complete badkamer is uitgevoerd met inloopdouche, ligbad, wastafelmeubel, hangtoilet en designradiator.

Algemeen:
-dit huis is gebouwd in 1975
-de warmwater- en verwarmingsvoorziening geschiedt middels een gasgestookte c.v.-installatie met Intergas HR combi-ketel, geïnstalleerd in 2020 
-de woning is volledig geïsoleerd en beschikt over energielabel C
-in 2021 is de woning aan de voorzijde uitgebouwd en is er op de gehele begane grond vloerverwarming geïnstalleerd en PVC vloer gelegd
-in 2021 is de groepenkast in meterkast vernieuwd
-de gevelbekleding van de rechter zijgevel is in 2024 vervangen door onderhoudsarm Keraliet en is er in de woonkamer een airco-installatie geïnstalleerd
-gelegen op slechts 10 fietsminuten van alle belangrijke voorzieningen die het dorp te bieden heeft (NS station, winkels, activiteitencentrum, sport accommodaties)
-binnen ca. autominuten zijn steden als Enschede, Hengelo, Almelo en Zwolle bereikbaar                             
 -bij koop wordt een waarborgsom/bankgarantie van 10% van de koopsom van de koper verlangd

Resumerend: een keurig onderhouden gezinswoning, gelegen in een groene en rustige woonomgeving.

Geïnteresseerd: op dinsdag 2 december 2025 van 9.30 tot 17.00 uur is er een kijkdag georganiseerd. U kunt alleen deelnemen op afspraak. Hiervoor kunt u tel. contact opnemen met ons kantoor op tel. nr 0546 641234.

Kenmerken