Beschrijving

Op villapark De Vlegge ligt deze perfect onderhouden, vrijstaande recreatiebungalow met inpandige bijkeuken/berging en een fraai aangelegde tuin rondom. De woning staat op een perceel van 376 m² eigen grond, is gebouwd in 2002 (de laatste bouwfase van het park) en is volledig geïsoleerd en inmiddels ook voorzien van zonnepanelen. 

Het bungalowpark is prachtig gelegen in een bosrijke omgeving en grenst direct aan een grote recreatieplas met zandstrand. Het park bevindt zich in het Overijsselse Vechtdal, op korte afstand van de Duitse grens, wat het tot een ideale vakantiebestemming maakt. Zowel natuur als cultuur zijn hier binnen handbereik. Op korte fietsafstand ligt bovendien het natuurgebied Engbertsdijksvenen, een bijzonder hoogveengebied dat deel uitmaakt van Natura 2000.

Deze woning is in het bijzonder geschikt voor diegenen die een 'eigen huisje' willen voor volledig eigen gebruik. Deze woning wordt verkocht met complete inventaris, waardoor hij direct te gebruiken is. 
Voor de goede orde; permanente bewoning is niet toegestaan.

Deze recreatiebungalow kent de volgende indeling:
Begane grond: entrée/hal met moderne toiletruimte, meterkast en trapopgang naar de verdieping; lichte en moderne woonkamer voorzien van PVC vloer en deur naar het terras; open keuken voorzien van lichte en moderne hoekopgestelde inbouwkeuken; slaapkamer voorzien van inbouwkasten; lichte en moderne badkamer; via buitenom te bereiken inpandige bijkeuken/berging.

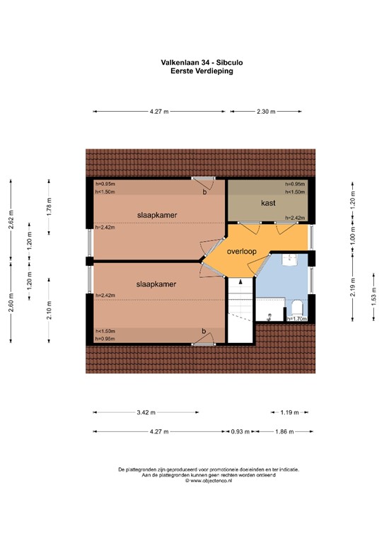
Verdieping: overloop: 2 ruime en lichte slaapkamers; (gasten-) badkamer.

De open keuken is voorzien van een moderne en lichte inbouwkeuken met daarin een gaskookplaat, afzuigkap, combi-magnetron en koelkast.

De lichte en moderne badkamer op de begane grond is voorzien van een inloopdouche met glasdeuren, designradiator en wastafel.

De (gasten-)badkamer op de verdieping is voorzien van een douche met cabine, wastafel, hangtoilet en radiator.

Algemeen:
-deze recreatiebungalow is gebouwd in 2002
-de warmwater- en verwarmingsvoorziening geschiedt middels een gasgestookte c.v.-installatie met Intergas HR combi-ketel, geïnstalleerd in 2022
-de bungalow is volledig geïsoleerd 
-in 2022 zijn er 10 zonnepanelen geïnstalleerd
-in 2022 is de woonkamer voorzien van een airco om mee te verwarmen en te koelen
-de bungalow wordt door de huidige eigenaren volledig privé gebruikt, echter de woning kan ook via Landal Greenparks worden verhuurd
-parkkosten/onderhoud groen e.d. zijn mandelig (bijdrage per kwartaal van circa € 345,50 inxcl. BTW), indien géén sprake is van verhuur en alleen eigen gebruik
-de woning wordt volledig gestoffeerd (incl. alle raambekleding) opgeleverd 
-bij koop wordt een waarborgsom/bankgarantie van 10% van de koopsom van de koper verlangd
-voor meer informatie over het park kijk ook op www.devlegge.nl of www.landal.nl

Resumerend: een goed onderhouden en sfeervolle recreatiewoning, mooi als belegging maar ook voor eigen gebruik.

#Geinteresseerd? Bel dan voor een vrijblijvende bezichtiging. Hiervoor kunt u tel. contact opnemen met ons kantoor op tel. nr. 0546-641234

Kenmerken